3 Bedroom
2 Bathroom
1,100 - 1,500 ft2
Central Air Conditioning
Forced Air
$565,000
Welcome to this charming 3-bedroom, 2-bathroom townhome nestled in a quiet and family-friendly Kanata neighbourhood. Perfectly located just north of the Kanata Business Park, this home offers the ideal blend of comfort and convenience for first-time buyers or savvy investors. Enjoy a short commute to work and easy access to schools, restaurants, parks, and hotels-all within walking distance, including beautiful McKinley Park just down the street. The fully fenced backyard with a deck is perfect for BBQs, playtime, or quiet evenings outdoors. Inside, the finished basement features a cozy rec room that's great for kids, a home office, or a family movie night. An attached single-car garage adds everyday practicality. This home is full of potential and ready for your personal touch. With a little love, it can become the perfect place to call your own. Don't miss this opportunity to make it shine! (id:31145)
Property Details
|
MLS® Number
|
X12475682 |
|
Property Type
|
Single Family |
|
Community Name
|
9008 - Kanata - Morgan's Grant/South March |
|
Amenities Near By
|
Park, Public Transit |
|
Community Features
|
School Bus |
|
Equipment Type
|
Water Heater |
|
Parking Space Total
|
3 |
|
Rental Equipment Type
|
Water Heater |
Building
|
Bathroom Total
|
2 |
|
Bedrooms Above Ground
|
3 |
|
Bedrooms Total
|
3 |
|
Appliances
|
Garage Door Opener Remote(s), Dryer, Microwave, Stove, Washer, Refrigerator |
|
Basement Development
|
Finished |
|
Basement Type
|
Full (finished) |
|
Construction Style Attachment
|
Attached |
|
Cooling Type
|
Central Air Conditioning |
|
Exterior Finish
|
Brick, Vinyl Siding |
|
Foundation Type
|
Poured Concrete |
|
Half Bath Total
|
1 |
|
Heating Fuel
|
Natural Gas |
|
Heating Type
|
Forced Air |
|
Stories Total
|
2 |
|
Size Interior
|
1,100 - 1,500 Ft2 |
|
Type
|
Row / Townhouse |
|
Utility Water
|
Municipal Water |
Parking
Land
|
Acreage
|
No |
|
Fence Type
|
Fenced Yard |
|
Land Amenities
|
Park, Public Transit |
|
Sewer
|
Sanitary Sewer |
|
Size Depth
|
106 Ft ,7 In |
|
Size Frontage
|
20 Ft |
|
Size Irregular
|
20 X 106.6 Ft |
|
Size Total Text
|
20 X 106.6 Ft |
Rooms
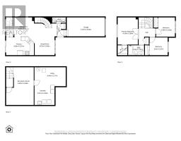
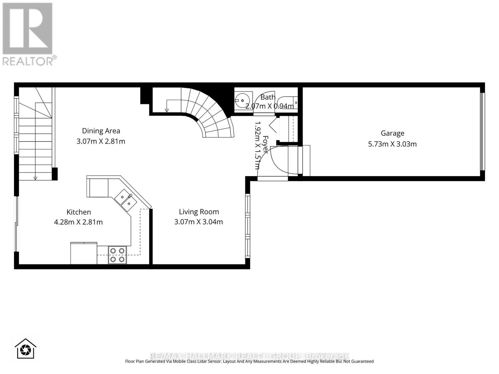
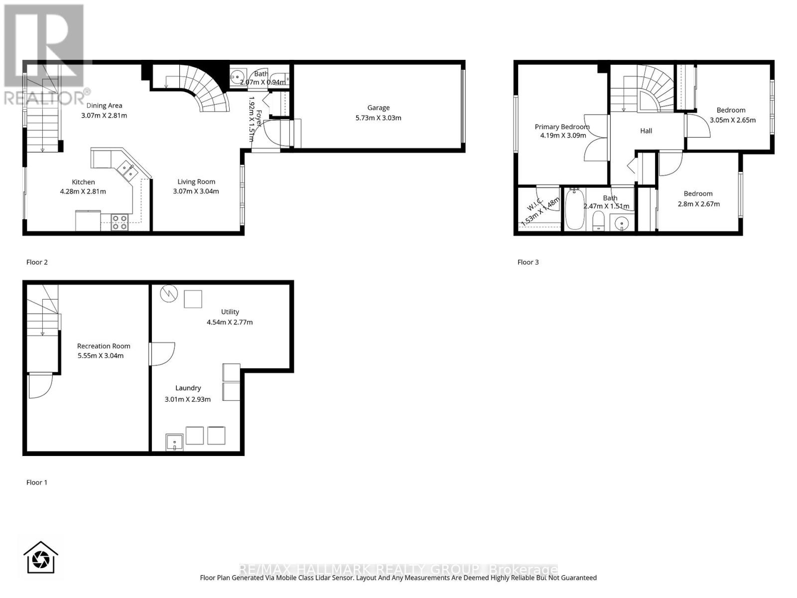
| Level |
Type |
Length |
Width |
Dimensions |
|
Second Level |
Primary Bedroom |
4.19 m |
3.09 m |
4.19 m x 3.09 m |
|
Second Level |
Bedroom 2 |
3.05 m |
2.65 m |
3.05 m x 2.65 m |
|
Second Level |
Bedroom 3 |
2.8 m |
2.67 m |
2.8 m x 2.67 m |
|
Second Level |
Other |
1.53 m |
1.48 m |
1.53 m x 1.48 m |
|
Basement |
Utility Room |
4.54 m |
2.77 m |
4.54 m x 2.77 m |
|
Basement |
Recreational, Games Room |
5.55 m |
3.04 m |
5.55 m x 3.04 m |
|
Basement |
Laundry Room |
3.01 m |
2.93 m |
3.01 m x 2.93 m |
|
Main Level |
Foyer |
1.92 m |
1.51 m |
1.92 m x 1.51 m |
|
Main Level |
Living Room |
3.07 m |
3.04 m |
3.07 m x 3.04 m |
|
Main Level |
Kitchen |
4.28 m |
2.81 m |
4.28 m x 2.81 m |
|
Main Level |
Dining Room |
3.07 m |
2.81 m |
3.07 m x 2.81 m |
Utilities
|
Cable
|
Available |
|
Electricity
|
Installed |
|
Sewer
|
Installed |
https://www.realtor.ca/real-estate/29018588/104-banchory-crescent-ottawa-9008-kanata-morgans-grantsouth-march