West Side - 67 Springhurst Avenue Ottawa, Ontario K1S 0E2

Landscaped

$895,000

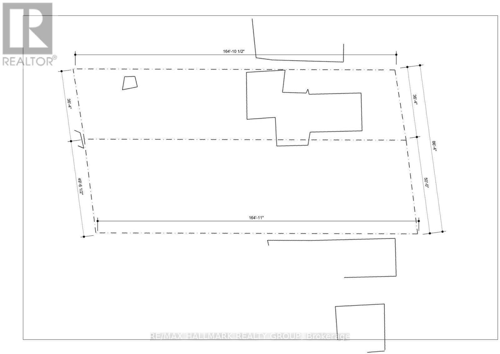
A rare opportunity to build custom homes on this 9,100 sq. ft. lot just off Main Street in the vibrant Ottawa East community. Steps from the Rideau River and surrounded by parkland, this location offers a perfect balance of city living and natural beauty. Walk to an array of independent shops, restaurants, and cafés along Main Street or enjoy the quick access to the Rideau Canal pathways and the Flora Footbridge connecting to the Glebe. Ottawa East is a neighbourhood rich in history and character, known for its mature tree-lined streets, established homes, and welcoming sense of community. With excellent schools, community centres, and recreational facilities nearby, it is a highly sought-after area for both families and professionals. Proximity to transit routes, Highway 417, and downtown Ottawa makes commuting simple and convenient. This wonderful lot sits on a quiet one-way street with mature landscaping, services at the street, and zoning (R3P [N4B]) that allows for a high-density infill project. The R-Plan for severance has been submitted so applications can begin immediately. A level lot bordered by single family homes and luxury condominiums, it provides numerous possibilities in a prime central location. An outstanding opportunity to create a signature project in one of Ottawa's most desirable downtown neighbourhoods. (id:31145)

Property Details

MLS® Number X12433204
Property Type Vacant Land
Community Name 4407 - Ottawa East
Amenities Near By Park

Building

Age New Building
Foundation Type Concrete, Block
Utility Water Municipal Water

Land

Acreage No
Land Amenities Park
Landscape Features Landscaped
Sewer Sanitary Sewer
Size Depth 165 Ft
Size Frontage 50 Ft
Size Irregular 50 X 165 Ft
Size Total Text 50 X 165 Ft|under 1/2 Acre
Zoning Description R3p (n4b)

Utilities

Cable Available
Sewer Available

https://www.realtor.ca/real-estate/28927000/west-side-67-springhurst-avenue-ottawa-4407-ottawa-east

Contact Us

Contact us for more information

Generating Captcha

Your Favourites

 

No Favourites Found