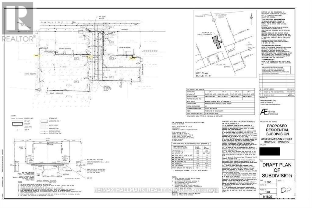
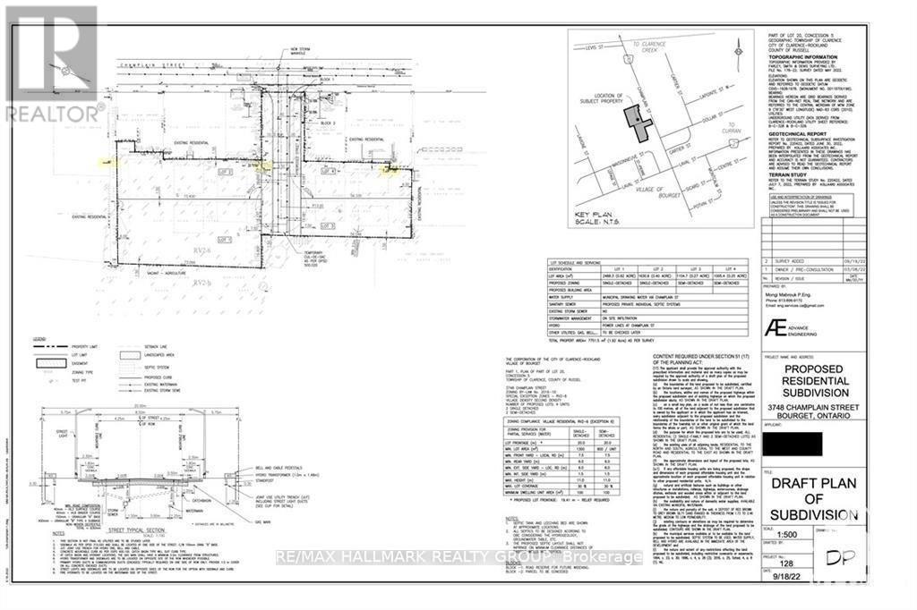
3 - 3748 Champlain Street Clarence-Rockland, Ontario K0A 1E0

0 - 699 ft2

$399,900

Ready to consider building? This building lot in the heart of charming Bourget is the one for you! No rear neighbours and directly across from the french elementary school. Potential to build up to 20 unit residential building on this lot. Centrally located lot within walking distance to all the villages amenities such as schools, library, shops, grocery store and more. (id:31145)

Property Details

MLS® Number X12466455
Property Type Vacant Land
Community Name 607 - Clarence/Rockland Twp

Building

Size Interior 0 - 699 Ft2

Parking

No Garage

Land

Acreage No
Size Depth 368 Ft
Size Frontage 132 Ft
Size Irregular 132 X 368 Ft ; 0
Size Total Text 132 X 368 Ft ; 0|under 1/2 Acre
Zoning Description Residential

Utilities

Cable Available
Electricity Available
Sewer Available

https://www.realtor.ca/real-estate/28998066/3-3748-champlain-street-clarence-rockland-607-clarencerockland-twp

Contact Us

Contact us for more information

Generating Captcha

Your Favourites

 

No Favourites Found